Болгарія! Золоті піски! Квартира в стилі 'Прованс' у найпрестижнішому комплексі (№ 239-883)
Ціна: 104 500 $

Адреса: Болгарія
Характеристики
| Ціна: | 104 500 $ |
|---|---|
| № об'єкта: | 239-883 |
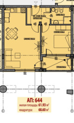
| Площа: | 68.6 м2 |
| Поверх: | 5 / - |
Опис
Апартаменти з однією спальнею в самому емблематичному резорті для постійного проживання на Золотих пісках - Аргішт Партез!
«Аргішт Партез»/Argisht Partez, Золоті піски – це комплекс для тих, хто цінує комфорт та розкіш.
Люди, які шукають СПА готелі в Болгарії, аквапарки часто зупиняються в Золотих пісках для повноцінного відпочинку біля моря.
Золоті піски - найбільший морський курорт у північній частині нашої країни, що пропонує безліч можливостей для відпочинку та розваг.
Argisht Partez розташований на другій лінії, за 120м від моря, в північній частині курорту.
Комплекс є оазис, на території якого розташовані:
4 басейни з шезлонгами, дитячі басейни, бар, що пропонує коктейлі та напої, VIP-зона, масажні намети, анімаційна сцена та вистави для дітей та дорослих, дивовижний квітник з безліччю різних екзотичних рослин. пальми, підземний паркінг на 300 машиномісць.
В усіх апартаментах та місцях загального користування комплексу є безкоштовний та високошвидкісний
WI-FI інтернет.
По самій квартирі:
Ціна 104 500 євро
з 1-спальнею
5 поверх
вид на красиву територію та басейн.
площа 68.6м2/ житлова 61.93м2
Ви можете оформити депозит і зафіксувати квартиру за собою дистанційно / не приїжджаючи / таким чином зможете спокійно планувати свою поїздку до Болгарії для підпису Попереднього Договору .
Депозит у розмірі 2000 євро можете перерахувати по банку (для цього будуть необхідні ваші паспортні дані), можете перерахувати через систему переказів Європою: Western Union, Money Gram, Золота корона, GMT (Israel).























